BLOG & TOPICS
■ひなたやの内装工事打合せ part 01~05
【内装会社によって打合せ方法や作成図面や資料、重要視する箇所は様々です】
美容室の新規出店や改装リニューアルなどには内装工事が付き物です。
ただ、工事業者に対して苦手意識があったり嫌な思いをされたことのあるサロンオーナーの話は未だによく耳にします。
苦手だからと言って打合せを入念にしなければ、完成物が理想とするものにならなかったりトラブルの元になります。
内装会社によって打合せの方法や量は異なりますが弊社のやり方は結構細かいようで、
他の内装会社を経験されたお客様からは
『ここまで選択肢をもらえるのは初めてです☺』
『こんなに細かい部分まで打合せできれば工事中も安心して仕事に専念できます!』
『他社で工事した時は打合せが少なく完成後修繕してもらったら多額の追加費用を請求されました。。。』
『今まで工事の打合せを楽しみだなんて思ったことなかったけど今回は楽しめました☺』
など嬉しいお言葉を多くいただけております!
多少不安があったとしても、工事までどのような流れで進むのかさえわかっていれば少し心配は減ると思いますので弊社のやり方と比較してもらうことで皆様のお役に立てればと思います。
着工までの流れはこのような順番に進んでいきます!
01.お問い合わせ・ご相談
※新規出店の場合は魅力的なテナントを見つけられたときに、改装の場合は改装を思い立たれたときにご連絡をいただくことが多いです。
既存のお客様は直接ご連絡をいただき、新規のお客様はホームページのお問い合わせフォームや公式LINEからのお問い合わせを多く利用していただいています。LINEでは簡単に画像を送信できるのでテナントの様子や理想とする内装イメージなどの共有がスムーズに行えます。
そこで初回お打ち合わせと現場調査の日程を決めます。

02.現場調査・初回お打ち合わせ
※この段階ではまだ不動産契約はしないでください(注意)
設備不足で店舗営業に至らない可能性もありますので不動産契約の前に必ず内装業者に確認してもらいましょう!
電気容量、排水径、給水(水圧)、ガスの有無や容量、給湯器の設置位置など要確認です。
現場調査は、直接現地に出向きテナントの内寸法を測り図面作成に備えます。
また、水道や電気、ガス、空調、防災などの設備のサイズや容量の確認をし、ここで店舗の営業が可能かを判断します。
現場調査が終わると近くの喫茶店などで打合せをさせていただき、この段階ではどのような店舗にしたいかを中心にお聞きします。
例えばこのような内容です
- セット面、シャンプー台の台数
- シャンプー台の機種(未定であればサイドorバックのみ)
- その他必要な設備(COLD、カラーラボ、バックヤード、トイレ、個室)等
- 内装の雰囲気
- ご希望の内装費
- OPENまでのスケジュール


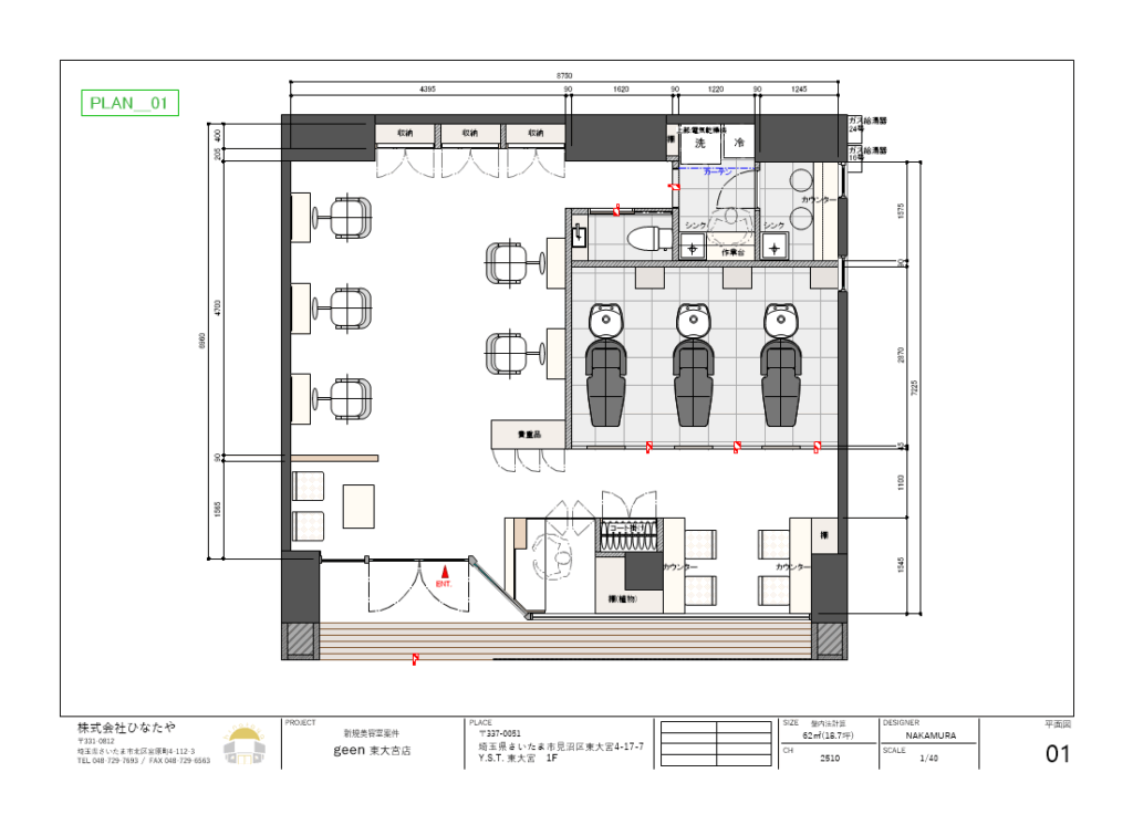
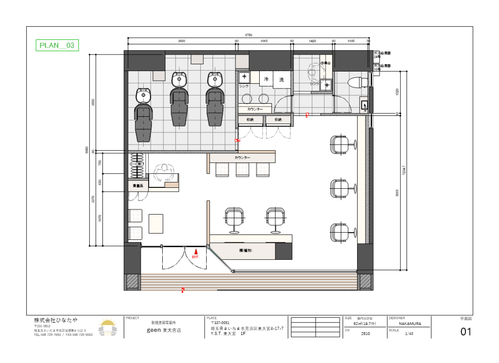
03.平面レイアウトプラン・イメージ画像・スケジュール
まず初回打ち合わせでお聞きした内容で平面レイアウトを数プランご提案します。
平面レイアウトとは間取りのことで受付やセット面やシャンプーブース、カラーラボの位置を決めていきます。数プラン提出しますが各プラン大幅に異なるポイントがあるように設計し、より多くの選択肢を与えられるように努力しています。弊社はこの平面レイアウト作成に大変定評があり、他社では出せない提案が出来ると自負しております。
この平面レイアウトで今後の働きやすさや居心地の良さ、捌ける顧客数も変わってくるのでとても大事な工程になります



もちろん一回で決まることはほとんどないのでこのプランを叩き台としてディスカッションし、試行錯誤して最高のものになるまで修正を重ねていきます。
平面レイアウトと同時に内装のイメージ共有も行います。前回のお打合せでお聞きした雰囲気のイメージを集め視覚的に好みを明確にしていきます。この時点で壁は塗装が良いとかタイルを貼りたいなどの大まかな工事項目を把握して次回提出する概算御見積書の作成に備えます。


あとはOPENまでのスケジュールを立てて、これからの流れをしっかり把握してもらいます。

04.平面レイアウト・ファサードイメージ・概算御見積書
平面レイアウトを修正し、LINEやメールのやり取りでほぼ完成くらいまでもっていきます。

1Fのテナントでは外装工事もある場合が多いのでファサード案もいくつか提出します。
外装もどこまで工事するかによって大幅に金額が変わってくるので概算御見積書を作成するために工事内容のボリューム感を共有する大事な資料になります。



この3プランを叩き台にしてディスカッションし、数回修正して理想の形までもっていきます

ファサードデザインが決まりましたらこの段階で不動産会社を通し大家様に外装工事の許可を取ります。大家様によって許容範囲が大幅に異なりますので、看板の設置が認められなかったり外壁へのビス固定が不可な建物もありますので要注意です!
あとこの時点での概算御見積書を提示します。
ここもポイントですが絶対に御見積書を作成してもらったほうが良いです。
最初に希望金額を伝えていても、要望が増え内容が大幅に変わると一気に金額が増額していることもあります。
内装会社の中には、なかなか見積書を提示しないで着工が迫ってから増額した見積書を提示し、後戻りできず契約してしまうケースもあるそうなので金額はこまめに聞くほうが良いです!
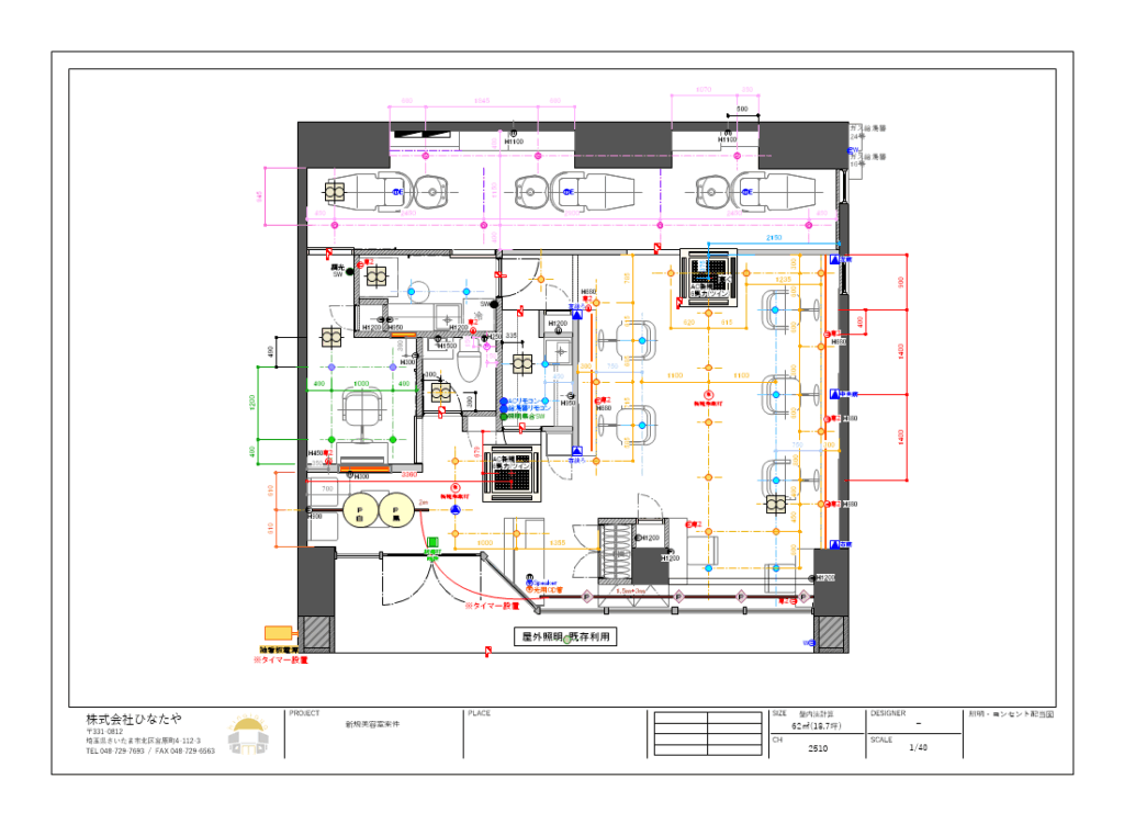
05.内装パース・照明コンセント配当図・御見積書
前回確定した平面レイアウトをベースに共有した内装イメージの雰囲気で内装パースを作成します。





お客様が望んでいる内装の雰囲気や内装イメージを共有しているので大幅にイメージを外すことなく、ここから微調整を繰り返して理想形にもっていきます。




次に照明計画やコンセントなどの弱電設備の打合せです。
希望する照明計画はダウンライトなのかライティングレールなのかから始まり、光の色味や照度を確認していきます。また照明のスイッチの位置や調光スイッチ、点滅グループまで自由に決められます。
スピーカーや音響BGMアンプの位置や光ルーターの設置位置、コンセントの位置や個数、エアコンのリモコンの位置など細かい打合せをして図面化します。


ここまできましたら前回お出しした概算御見積書をより細かく積算して通常の御見積書を作成します。
こちらの御見積書ではある程度明細に近いものを提示できますのでリアルな金額を知ることができます。この時点でご予算より大幅にズレていましたら内容を工事内容大きく変更したり、急いで他社に見積もりを取るなどの対策をとらないとオープンに間に合わなくなりますので色々な選択肢を持って工事打合せを進めることが成功に繋がります!
続きは次のブログに記載します!
LINEで問い合わせ
お見積もりの依頼や、各種ご質問など、LINEからもお問い合わせを受け付けております。

